AutoBRIDGE Family Manager Workflow
Add Custom Nested Family for Corridor
Complete professional workflow for building adaptive nested families and deploying them inside AutoBRIDGE Family Manager.
Phase 1: Adaptive Family Creation
01Create Generic Model Adaptive Family
Create a new Metric Generic Model Adaptive family for the nested element. Select the template and open it.

02Assign the View
Open Front View to start preparing the section.

03Add Asphalt Reference Plane
Add reference plane for asphalt thickness and create a dimension parameter to control it.

04Assign Work Plane
Assign work plane to Center Front before placing adaptive points.

05Add Intersection Point
Add intersect point from vertical reference plane and new horizontal reference plane.

06Associate Superelevation
Select the point → Show Reference Planes: Always → Associate rotation angle to family parameter Superelevation.

07Assign Work Plane to Point
Set work plan and Pick a plane on the point surface as work plane to ensure rotation control.

Instead of starting from scratch, you can copy and paste the current nested_family_template from:
..\\Documents\AutoBRIDGE\Modeler\XXXX\nested_family_template
Updating an existing template saves time and ensures consistent parameters.
Phase 2: Geometry Creation & Rotation Test
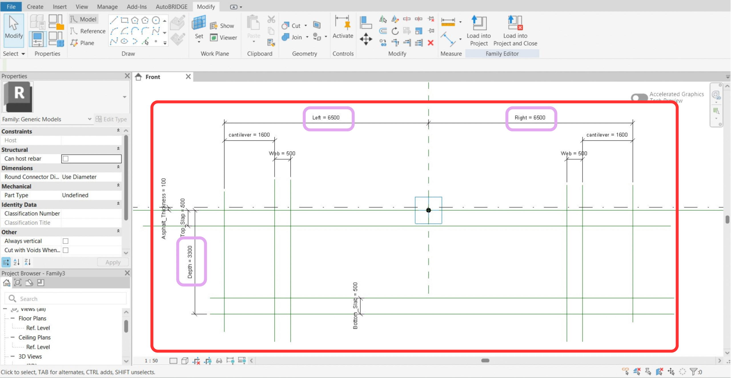
08Create Box Girder Reference Lines
Create reference lines to form custom box girder. Add parameters: Right, Left, Depth and any required corridor dimension.

When creating or updating your nested family, ensure the following to avoid corridor errors:
- All parameters must be set to Instance (not Type).
- All parameters must be "clean"—meaning No Formulas should be used in the formula column.
09Test Superelevation
Test rotation, by adding value to superelevation parameter. If error appears, dimensions are not related to adaptive point. Remove wrong constraints and reapply correctly.

10Rotation Success
Rotation works smoothly with Superelevation parameter.

Phase 3: Boundaries & Subcategories
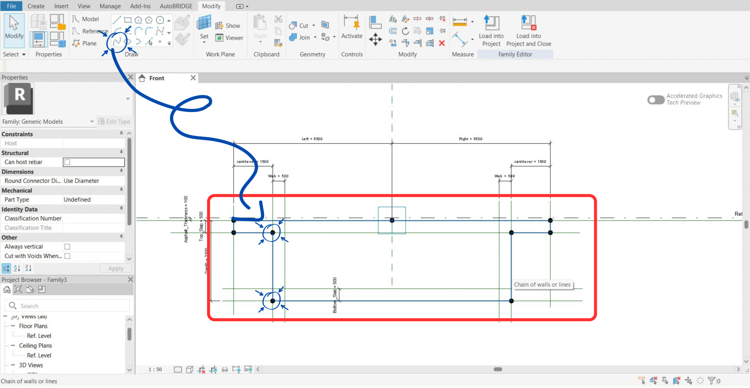
11Draw Boundaries
Reset rotation. Draw spline through points for outside and inside boundaries separately.

12Create Subcategories
Manage → Object Styles → Generic Model → New Subcategory. Create Solid & Void.

13Verify Subcategories
Ensure two subcategories created correctly.

14Assign Subcategories
Assign Solid to outside boundary and Void to inside boundary.

You can use another sub-nested family without rotation and load it onto the rotated points. This allows easier control of geometry within the corridor.
Phase 4: AutoBRIDGE Family Manager
15Open Family Manager
Open AutoBRIDGE → Family Manager.
The Family Manager interface is organized into the following main sections:
- 1. Nested Family Preview: Displays a live preview of the selected family.
- 2. Template Section: Manage existing or new templates for future project reuse.
- 3. Nested Family List: Shows all nested families in the active template.
- 4. Subcategory List: Displays subcategories inside the selected nested family.
- 5. Current Template: Indicates the template active for corridor creation.
Watch the detailed Family Manager tutorial video here
16Create Template
Create new template and assign name.

17Make Current
Select template and press Make Current.

18Add Nested Family
Press Add and select created nested family. Confirm success message.

19Verify Nested Family List
Ensure nested family appears in list correctly.

Phase 5: Corridor Validation
20Check in Corridor Creation
Open Corridor tool (Civil3D or other workflow). Confirm template and nested family appear in Family section.

For more details on the corridor generation process, visit the full Corridor Creation Workflow.
21Corridor Success
Final corridor generated successfully with adaptive control.
